Built to last

Crafted for Stability and Style

Beyond the technical precision, The Frame represents architectural artistry, where form meets function. Each layer is designed to create a living experience defined by strength, comfort, and elegance.

Construction Methodology

A collaboration between IDL Bali Best Construction & Digital Nomad Estates

A Proven Partnership Built on Excellence:
The Frame Balangan is delivered through a strategic partnership between IDL Bali Best Construction, a builder with over 35+ years of experience and 80+ completed hospitality projects, and Digital Nomad Estates, a forward-thinking developer shaping the future of lifestyle real estate in Bali. This collaboration unites engineering mastery with visionary living concepts.

Designing for Comfort, Privacy, and Longevity:
Every apartment is engineered with a deep understanding of how people live, rest, and thrive. Structural brick thickness and reinforced concrete walls are carefully calculated to provide superior sound insulation, privacy, and thermal comfort, creating serene living spaces even in a vibrant tropical environment.

Advanced Waterproofing & Structural Protection
A multilayer concrete blanket system is applied across roofs, walls, and wet areas, ensuring comprehensive waterproofing and moisture resistance. Certified waterproofing operators implement systems designed to prevent leaks, mold, and structural fatigue, backed by a 30 year warranty for long-term peace of mind.

Craftsmanship That Elevates Everyday Living:
Interior elements and built in furniture are handcrafted by seasoned artisans with decades of experience. Each piece is designed for durability, spatial efficiency, and timeless aesthetics, ensuring every unit feels refined, functional, and investment grade.

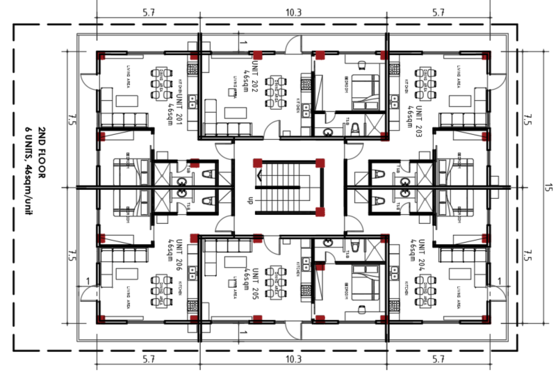
An Integrated Living Ecosystem:
The Frame Balangan is conceived as a single, seamless ecosystem. Every component, from private units to shared amenities, works together as one living organism, designed to support the daily rhythms and long term wellbeing of residents and tenants.

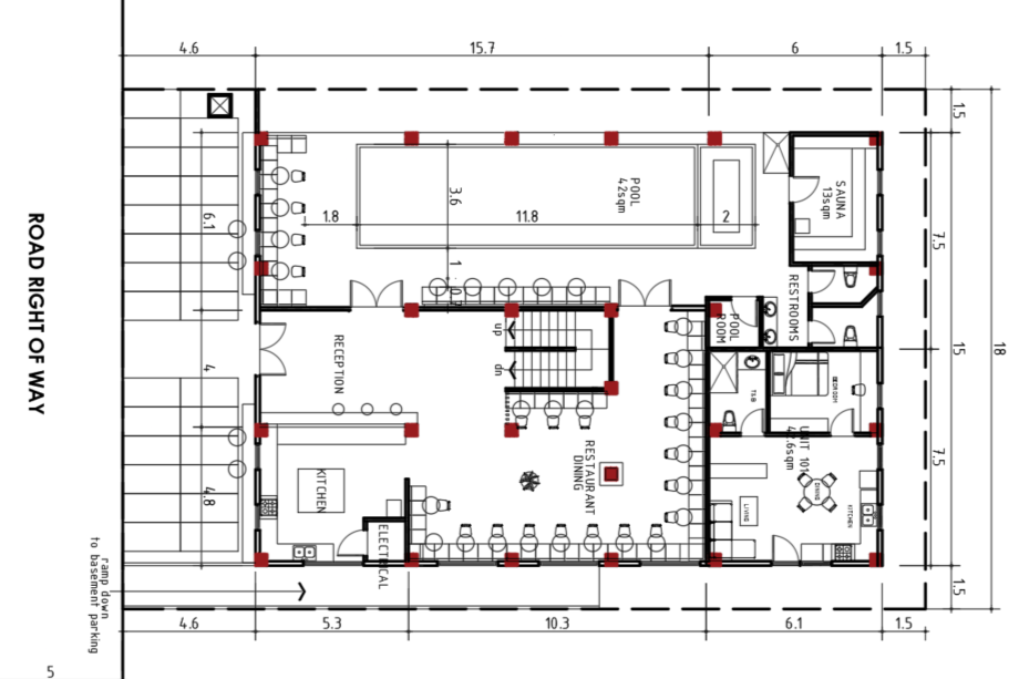
Lifestyle-Centric Amenities:
Residents enjoy a thoughtfully designed pool and lounge area, complete with a sauna for relaxation and recovery. The ground floor is dedicated to vibrant public use, featuring a high quality restaurant and modern co-working space, enhancing both lifestyle value and rental appeal.

Robust Drainage & Climate Resilience:
A unified vertical drainage system connects all levels, from rooftop to basement, engineered to perform reliably under Bali’s most extreme weather conditions. This integrated approach prevents water pressure buildup, flooding, and long-term wear.

Comprehensive Fire & Safety Systems
Each unit is equipped with advanced fire detection and alarm systems, supported by clearly defined emergency assembly points and evacuation protocols. All operational staff are professionally trained to respond swiftly and effectively in any emergency scenario.

Precision Execution & Quality Control:
Construction is fully led and supervised by IDL Bali Best Construction’s senior management team. Progress is monitored through strict quality control milestones, ensuring structural integrity, finishing precision, and on time delivery without compromise.

Built for Today, Secured for Tomorrow:
Every technical decision at The Frame Balangan is made with long-term asset performance in mind, protecting investor value while delivering an exceptional living experience that stands the test of time.

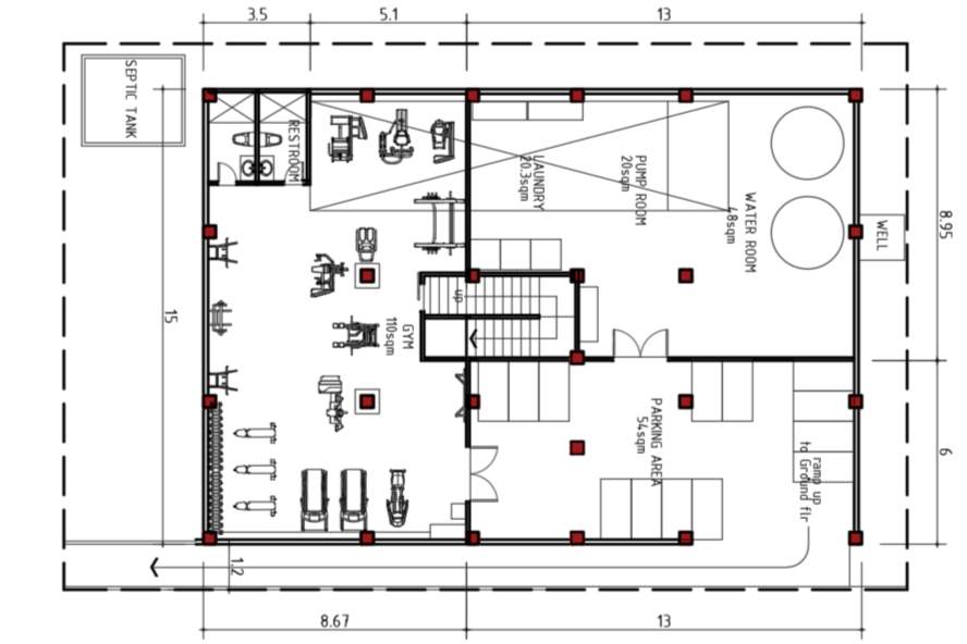
Engineering in Detail

The Frame’s foundation plan showcases the core of its strength, reinforced with concrete footings and beams designed to support vertical loads efficiently. This phase demonstrates our engineers’ dedication to accuracy and reliability, ensuring that the structure remains solid through time and environment.

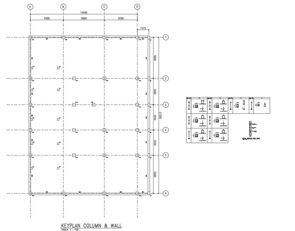
A Structure in Motion

This 3D model illustrates the complexity and harmony of The Frame’s skeletal structure. Every floor, beam, and column connects in perfect alignment, a visual representation of modern engineering at work. Using advanced modeling software, our team ensures every component is optimized before construction begins.

MEP Structure Civil Drawings